Tiddlywinks Nursery
Easingwold
2025 - Present
Transformation of a former Barclays Bank into a vibrant children’s nursery, breathing new life into a historic building.
1 Existing Property




2 Proposed External Reconfiguration
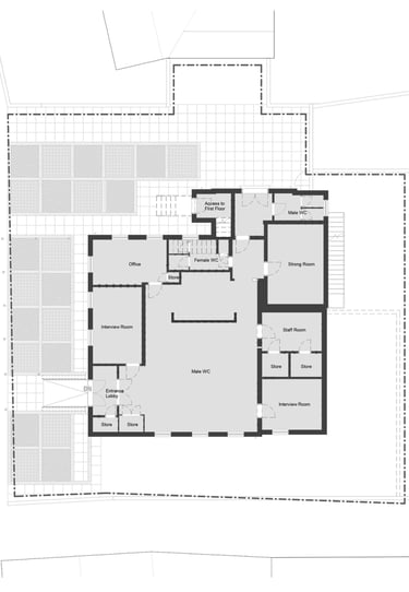
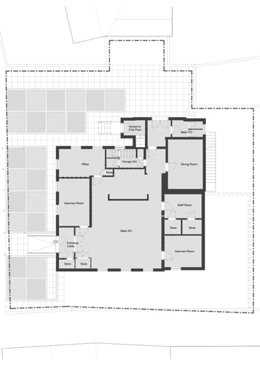
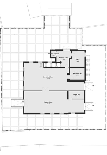
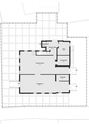
4 Existing & Proposed Ground Floor Plan


5 Existing & Proposed East & West Elevations




3 Existing Photograph





