Glendower Park
Adel, Leeds
2025 - Present
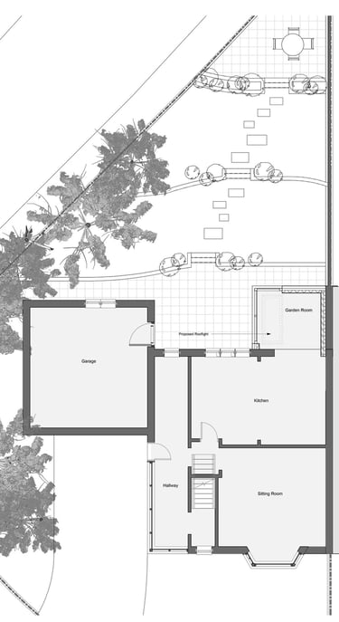
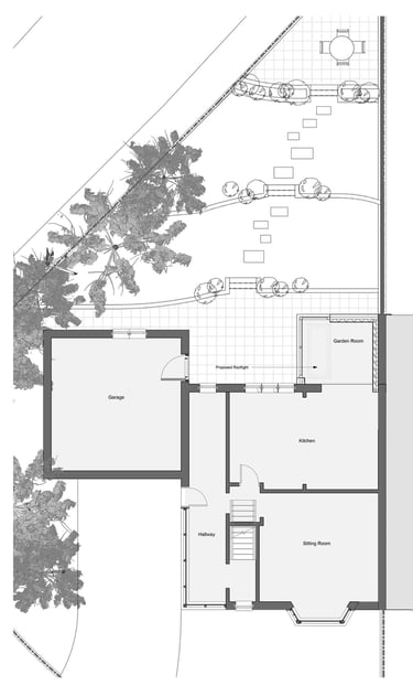
A delicate garden room blurs the boundaries between interior and exterior. Glazing punctuates the stone at the corner, framing the garden by drawing the eye upwards and outwards through the roof light and sliding doors. The room is both open and private sunken below the reworked raised garden.
1 Existing Property


2 Proposed Extension
3 Proposed Ground Floor Plan


4 External & Internal Perspective









